Bureau - 74 m² - 4 pièces à Paris 18
Description :
**LE VESTIAIRE DE L'IMMOBILIER** a le plaisir de vous proposer à la vente ce lot de bureaux d'une surface d'environ 75 m², situé en rez-de-chaussée dans le 18? arrondissement de Paris, à proximité immédiate du métro Barbès - Rochechouart (lignes 2 et 4), de la Gare du Nord (RER B et D) et de Magenta (RER E).
Ce bien est issu d'un actif actuellement détenu en bloc et en cours de commercialisation à la découpe.
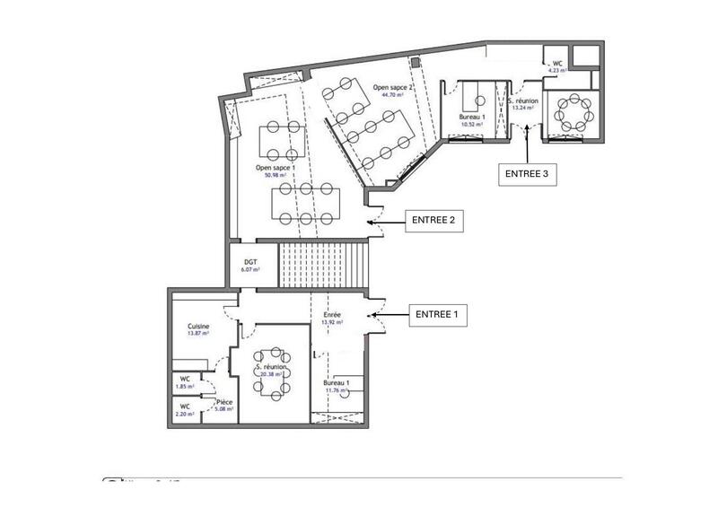
Implanté sur cour, au calme, ce lot bénéficie d'une configuration rationnelle et facilement exploitable. Il dispose d'un accès indépendant et se compose d'une entrée desservant plusieurs espaces de travail : bureaux, salle de réunion et espace cuisine.
L'ensemble est fonctionnel en l'état et permet une installation rapide pour une activité professionnelle.
La configuration du bien, ainsi que l'absence de division juridique à ce stade, offrent un réel potentiel d'optimisation. Une transformation en habitation peut être envisagée, sous réserve des autorisations administratives nécessaires.
Ce bien s'adresse aussi bien à un utilisateur (professions libérales, bureaux, activité tertiaire) qu'à un investisseur ou un opérateur à la recherche d'un actif à reconfigurer.
Locaux ERP 5? catégorie, accessibles PMR.
Un produit rare sur le secteur, avec plusieurs angles de valorisation.
VESTIAIREMENT VÔTRE...
Honoraires inclus de 5.56% à la charge de l'acquéreur. Prix hors honoraires 540 000 €. Dans une copropriété de 57 lots. Quote-part moyenne du budget prévisionnel 1 397 €/an. Aucune procédure n'est en cours. Classe énergie C, Classe climat B. Les informations sur les risques auxquels ce bien est exposé sont disponibles sur le site Géorisques : georisques.gouv.fr.
Informations sur ce bien :
L'intérieur :
-
4 pièces
-
74 m²
L'extérieur :
-
Parking
-
2 Box
Autres :
-
Chauffage :Individuel, Électrique
-
Année de construction :1992
-
Étage :RDCInformations complémentairesNombre d'étages de la construction : 6
Copropriété :
-
Copropriété :Oui
-
Nombre de lots :57
-
Charges annuelles :1 397 €
Localisation :
Performance énergétique :
Ventes de bureaux à proximité
- 4 ventes de bureaux à Saint-Ouen (2.7 km)
- 1 vente de bureau à Aubervilliers (3.3 km)
- 2 ventes de bureaux à Clichy (3.8 km)
- 164 ventes de bureaux à Paris (3.9 km)
- 1 vente de bureau aux Lilas (5 km)
- 1 vente de bureau à Villeneuve-la-Garenne (5.4 km)
- 1 vente de bureau à Bagnolet (5.7 km)
- 2 ventes de bureaux à Bois-Colombes (6.7 km)
- 4 ventes de bureaux à Saint-Mandé (7.2 km)